我想咨询最新报价,请电话联系我。
能否发几款热销产品及详细报价?
想要合作,请回电告知具体细节。
可以非标订制吗?急需,请回电!
60
秒
人
工
响
应- 免
费
方
案
设
计 - 完
善
售
后
团
队
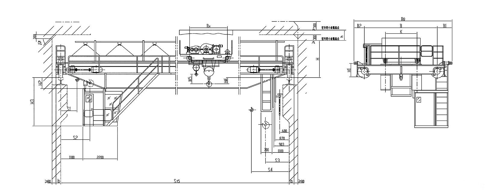
QB型防爆桥式起重机
| 产品型号: | QB型 |
| 起升吨位: | 5-75吨 |
| 起升高度: | 14-22米 |
| 适用跨度: | 10.5-31.5米 |
| 应用范围: | QB型防爆桥式起重机产品型号:QB型起升吨位:5-75吨起升高度:14-22米适用跨度:10.5-31.5米工作级别:A4双梁防爆起重机产品介绍:QB型防爆桥式起重机... |
24小时免费服务热线
15993095499



