我想咨询最新报价,请电话联系我。
能否发几款热销产品及详细报价?
想要合作,请回电告知具体细节。
可以非标订制吗?急需,请回电!
60
秒
人
工
响
应- 免
费
方
案
设
计 - 完
善
售
后
团
队
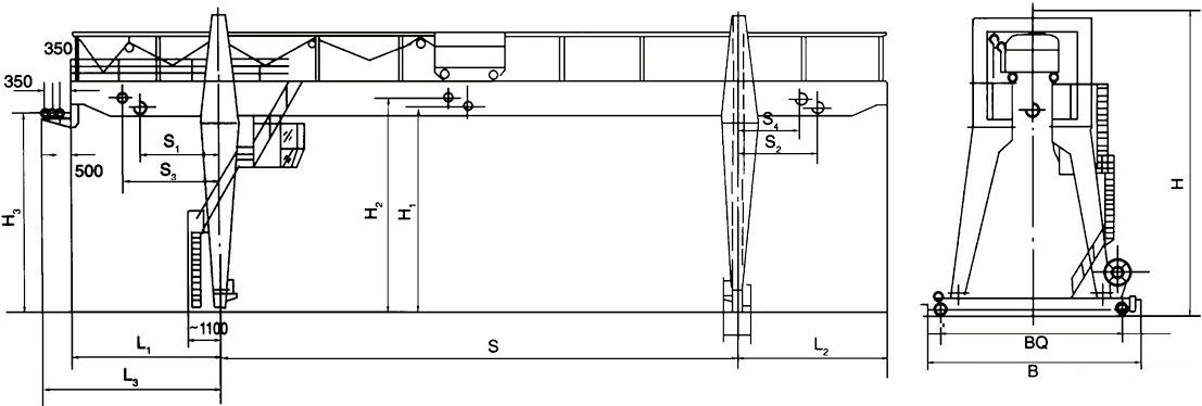
MG型双主梁吊钩门式起重机
| 产品型号: | MG型 |
| 起升吨位: | zui大可500吨 |
| 起升高度: | 12米 |
| 适用跨度: | 18-35米 |
| 应用范围: | 产品型号:MG型起升吨位:zui大可500吨起升高度:12米适用跨度:18-35米工作级别:A5双梁门式起重机产品介绍:MG型通用门式起重机(双梁吊钩门式起重机... |
24小时免费服务热线
15993095499



